0
Retour
    Sous-compromis
    Nouveauté

Ville-di-Pietrabugno (20200)
Rare à la vente : vaste maison rénovée au coeur de Bastia - Toga type T5 avec T2 independant et vue mer panora

Prix
du bien
639 000 €
réf : V80000972

01
Général

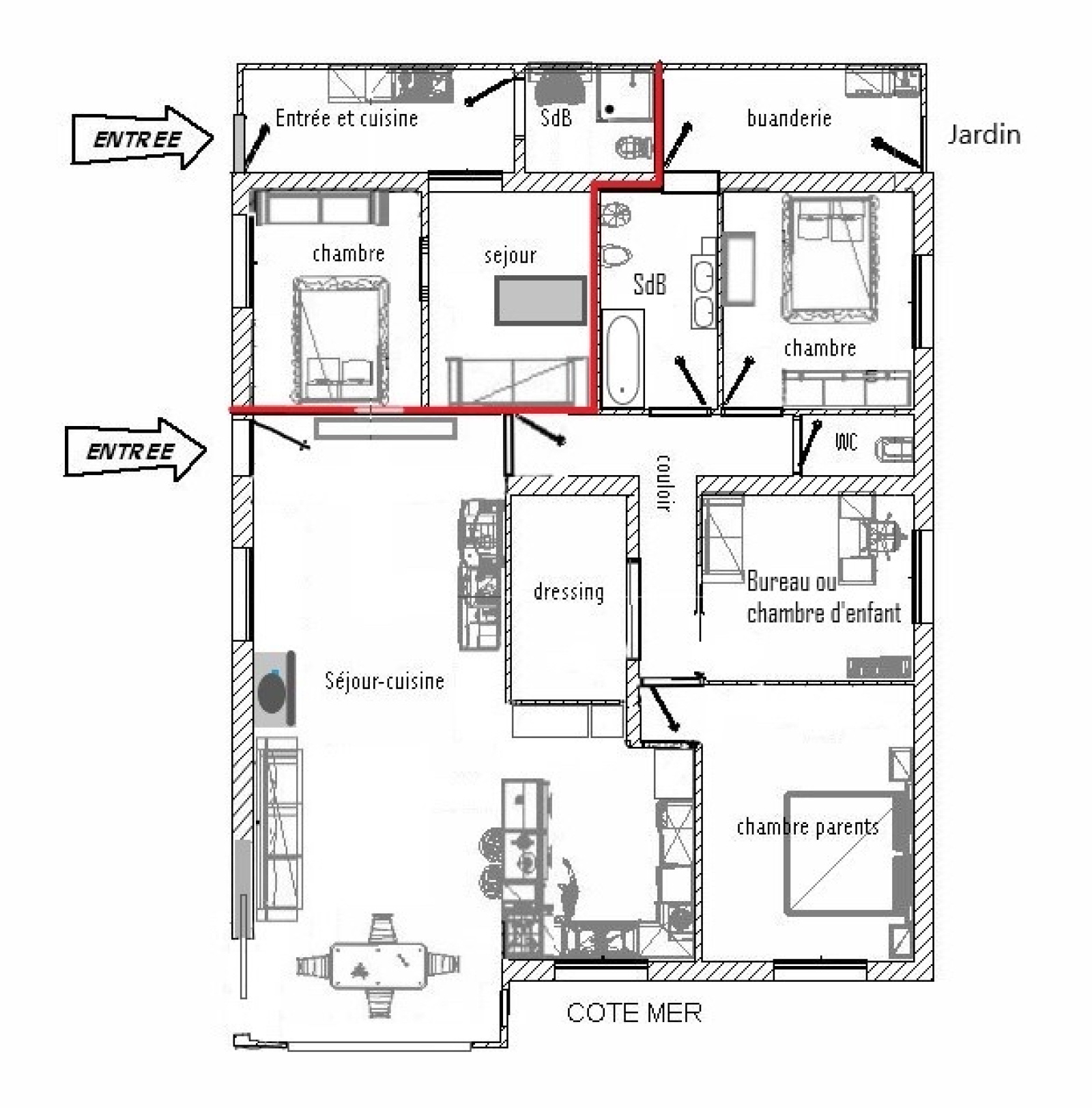
Pépite immobilière : l'Agence vous présente une maison individuelle avec soubassement en pierre élevée de deux niveaux en plein coeur du quartier prisé de Toga. L'atout de cette maison réside dans ses possibilités de logements multiples : - Au rez-de chaussée , au niveau du stationnement se trouvent un grand studio et un garage de 30 m2 avec porte motorisée. - Au niveau zero de la maison principale de type T5 auquel on accède par une belle terrasse dallée plein Sud, l'entrée s'ouvre directement sur l'immense salon-séjour baigné de lumière avec dans son décroché et face à la mer une belle cuisine aménagée et intégralement équipée. La partie "nuit" à laquelle on accède par un couloir comprend 3 chambres (l'une est actuellement utilisée en bureau), un vaste dressing aménagé, un WC séparé et une salle de bains qui ouvre sur un espace aménagé en buanderie au dos de la maison. Sur ce niveau accessible par une entrée indépendante un T2 avait ete aménagé par les propriétaires actuels mais il est facilement réunissable au reste de la maison permettant ainsi de récuperer une autre chambre tres bien exposée au Sud avec une autre salle de bains. En R+2 auquel on accède par un escalier extérieur les combles viennnent d'être aménagés avec toutes les arrivées permettant de disposer d'un plateau "brut" de 80 m2 avec une belle terrasse pleine mer permettant tous les usages( salle de jeux, loft, immense bureau ou appartement indépendant). Un jardin d'environ 3 X 15 m au dos de la maison constitue un charmant potager. ATOUT : une maison quasi "en ville " avec une vue mer panoramique sur les iles italiennes idéale pour une grande famille et offrant l'avantage d'être face à la plage et à proximité de tout (nombreux commerces en front de mer a Toga) et arret de bus à proximité immédiate pour les enfants indépendants.

02
Plus d'infos

  • Code postal
    20200
  • Surface habitable (m²)
    260 m²
  • surface terrain
    525 m²
  • Nombre de chambre(s)
    4
  • Nombre de pièces
    5
  • Nombre de niveaux
    2
  • Vue
    mer

03
Financier

  • Prix de vente honoraires TTC inclus
    639 000 €
  • Taxe foncière annuelle
    1 600 €

04
Plus de détails

  • Nb de salle de bains
    3
  • Cuisine
    Américaine
  • Type de cuisine
    Equipée
  • Mode de chauffage
    Climatisation
  • Type de chauffage
    Air pulsé
  • Format de chauffage
    Individuel
  • Exposition
    Est

05
Copropriété

  • Copropriété
    NON
  • plan de sauvegarde
    NON

06
Bilan énergétique

DPE GES
Nos outils

Plus d'informations sur
le quartier

  • Commerces et santé
  • Loisirs
  • Ecoles
  • Transports
  • Pratique
Intéressé(e)
par ce bien